Y945H电动双阀座蒸汽减压阀
- 销售:
- 销售:
- 传真:
详情介绍
- 产品介绍
- 服务承诺
- 订货流程
Y945H/Y电动双阀座蒸汽减压阀主要由阀体、阀座、阀瓣等零件组成,采用双阀座、双锥体阀瓣的结构。采用压力平衡式阀瓣,通过阀瓣升降调节压力可配用ZKZ-BC型或其它型直行程电动执行器实现遥控和自动控制。
Y945H/Y电动双阀座蒸汽减压阀的减压比用到0.6较为合适。
Y945H/Y电动双阀座蒸汽减压阀主要用于蒸汽管路,调节压力。广泛应用在热电联产、轻纺、印染、石化、制糖等行业。
技术参数
公称压力(Mpa) | 1.6 | 2.5 | 4.0 | 6.4 | 10.0 | 16.0 |
壳体试验压力(Mpa) | 2.4 | 3.75 | 6.0 | 9.6 | 15.0 | 24 |
密封试验压力(Mpa) | 1.76 | 2.75 | 4.4 | 7.04 | 11.0 | 17.6 |
高进口压力(Mpa) | 1.6 | 2.5 | 4.0 | 6.4 | 10.0 | 16.0 |
出口压力范围(Mpa) | 佳减压比0.6 | |||||
渗漏量 | 0.5QMax | |||||
温量-压力等级 | ANSI B16.34 | |||||
执行机构
公称通径 | 50 | 65 | 80 | 100 | 125 | 150 | 200 | 250 | 300 | 350 | 400 | 500 |
配执行机构型号 | ZKZ-310BC | ZKZ-410BC/ZKZ-510BC | ZKZ-510BC | ZKZ-610BC/ B+Z250/F1800 | ||||||||
行程 | 25 | 30 | 50/30 | 50 | 60 | 100 | ||||||
推力(N) | 4000 | 6400/1600 | 16000 | 2500 | ||||||||
全行程时间(S) | 20 | 32 | 37 | 62 | ||||||||
输入信号 | 4-20mA DC | |||||||||||
供电电源 | 220V 50Hz | 380V 50Hz | ||||||||||
基本误差() | ≤±2.5 | |||||||||||
基本误差() | ≤±1.5 | |||||||||||
基本误差() | ≤3 | |||||||||||
主要零件材料
零件名称 | 零件材料 |
阀体 阀盖 底盖 | WCB |
阀座 | 304 |
阀瓣 | 2Cr13 |
阀杆 | 2Cr13 |
垫片 | 柔性石墨/1Cr18Ni9 |
导向套 | 2Cr13 |
填料 | 柔性石墨 |
螺栓 | 35CrMoA |
螺母 | 45 |
流量系数Cv
DN | 50 | 65 | 80 | 100 | 125 | 150 | 200 | 250 | 300 | 350 | 400 | 500 |
Cv | 15 | 20 | 35 | 60 | 70 | 110 | 150 | 230 | 420 | 540 | 710 | 1020 |

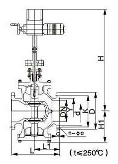
主要外形尺寸
PN1.6-4.0MPa
公称通径DN | 外 形 尺 寸 | |||
L | L1 | H | Hl | |
50 | 300 | 150 | 880 | 190 |
65 | 340 | 170 | 890 | 205 |
80 | 380 | 190 | 910 | 215 |
100 | 400 | 215 | 950 | 240 |
125 | 430 | 225 | 990 | 275 |
150 | 450 | 230 | 1090 | 320 |
200 | 500 | 260 | 1160 | 340 |
250 | 550 | 285 | 1230 | 370 |
300 | 750 | 395 | 1370 | 460 |
350 | 850 | 445 | 1450 | 530 |
400 | 950 | 550 | 1570 | 660 |
500 | 1130 | 680 | 1780 | 800 |
PN6.4-16.0MOa
公称通径DN | 外 形 尺 寸 | |||
L | L1 | H | Hl | |
50 | 300 | 150 | 880 | 200 |
65 | 340 | 170 | 890 | 215 |
80 | 380 | 190 | 910 | 225 |
100 | 400 | 215 | 950 | 250 |
125 | 430 | 225 | 990 | 285 |
150 | 450 | 230 | 1090 | 330 |
200 | 500 | 260 | 1160 | 355 |
250 | 550 | 285 | 1230 | 390 |
300 | 750 | 395 | 1370 | 480 |
350 | 850 | 445 | 1450 | 550 |
400 | 950 | 550 | 1570 | 700 |
500 | 1130 | 680 | 1780 | 820 |
良好的品质、优良的服务 宝盈官网_宝盈(中国)一站式服务官网为你创造更多价值!
“宝盈官网_宝盈(中国)一站式服务官网”的期望,不断提升服务质量,精益求精,“真诚的服务”是“宝盈官网_宝盈(中国)一站式服务官网”永恒的主题。“宝盈官网_宝盈(中国)一站式服务官网”严格按照IS09001-2000 质量体系认证要求,质量严格把关, 责任到人,确保生产、销售、服务的健康运行。加强与用户沟通,竭诚为广大客户提供优良产品,至善至美服务。特此我厂做出以下承诺:
产品标准:
产品严格按照中国GB、HG 标准和美国API等标准设计、制造、验收。密封面硬度达到国家规定要求,宽度超过国家标准。
售前服务:
产品介绍,技术交流,非标产品设计,疑难解答。
售中服务:
守信合同,保证及时供货,随时保持与客户联系。 对特殊或复制的产品,我厂安排技术人员对用户进行产品使用、故障排除
售后服务:
1、“宝盈官网_宝盈(中国)一站式服务官网”牌产品品质期为自出厂起12个月,实行“三包”服务(包退、包换、保修)。
2、产品在使用中我厂定期组织技术、质检人员进行访问,征询用户对产品质量、 使用状况、改进意见等方面的反馈, 以便进一步提高产品质量。
3、对用户投诉质量问题,快速作出反应,售后服务人员在24-36小时(省外48小时)赶赴现场。
4、对售后服务,要求用户填写服务后的质量反馈信息表,并作出鉴定意见,以便提高宝盈官网_宝盈(中国)一站式服务官网的服务质量。
1、客户如对产品有特殊要求,须在订货合同中提供以下说明:
a、结构长度;
b、连接形式;
c、公称直径、全通径、缩径、管道尺寸;
d、运行介质及温度、压力范围;
e、试验、检验标准及其他要求
2、本厂可根据客户特定要求配置各类驱动装置。
3、如由客户提供确定的阀门类型和型号时,客户应正确说明其型号的含义和要求,在供需双方理解一致的条件下签订合同。
4、期货、订货的客户请先来电函详细告诉所需的阀门型号、规格、数量以及交货时间、地点,并按总的30%预定金或全额货款及时汇入我厂帐户,其余货款待发货前汇入,以便及时安排发货。
订单流程:
1、客户采购清单传真至,或来电咨询
2、收到客户采购清单,为客户提供阀门型号选型与报价(价格清单)。
3、具体商定:交货期、特殊要求等事宜。
订货须知:
1、客户如对产品有特殊要求,须在订货合同中提供以下说明:
|
|||||
|
|||||
2、本厂可根据客户特定要求配置各类驱动装置。
|
|||||
3、如由客户提供确定的阀门类型和型号时,客户应正确说明其型号的含义和要求,在供需双方理解一致的条件下签订合同。
|
|||||
4、期货、订货的客户请先来电函详细告诉所需的阀门型号、规格、数量以及交货时间、地点,并按总的30%预定金或全额货款及时汇入我厂账户, 其余货款待发货前汇入,以便及时安排发货。
|
售中服务:
守信合同,保证及时供货,随时保持与客户联系。
对特殊或复制的产品,我厂安排技术人员对用户进行产品使用、故障排除
售后服务:
1、“宝盈官网_宝盈(中国)一站式服务官网”产品品质期为自出厂起12个月,实行“三包”服务(包退、包换、保修)。
2、产品在使用中我厂定期组织技术、质检人员进行访问,征询用户对产品质量、使用状况、改进意见等方面的反馈,
以便进一步提高产品质量。
3、对用户投诉质量问题,快速作出反应,售后服务人员在24-36小时(省外48小时)赶赴现场。
4、对售后服务,要求用户填写服务后的质量反馈信息表,并作出鉴定意见,以便提高“宝盈官网_宝盈(中国)一站式服务官网”的服务质量。
声明 |
|